Full Screen
Code View

Properties for the 2026-27 

tenancy period NOW LIVE!

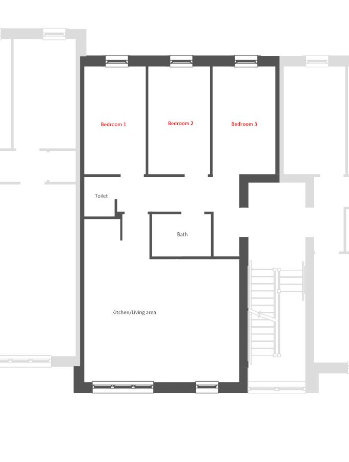
Flat 25 Columbia Lodge, Vermont Close

RESERVED

Flat 25 Columbia Lodge, Vermont Close

Southampton SO16 7QL

3 bedrooms | £133.00/pppw exc.

Ask a question…

We’re here to help.

Contact Us

0.96 miles to University of Southampton

2.46 miles to Solent University

Deposit: £350.00pp

Property Ref: 1625

Tenancy start date: 17th July 2026

Spacious 3 bedroom second floor flat, ideally located in the popular Bassett Green area with Uni-Link bus routes nearby. The complex benefits from a courtyard and bicycle storage facilities.

The property is a 10 minute walk to Highfield Campus and a 25 minute walk to Avenue Campus.

We have a dedicated in-house Maintenance Team as well as friendly office staff who will be happy to assist with any queries throughout the tenancy.

The rental price advertised is inclusive of all utility bills (water, gas, electricity) and Virgin Media broadband.

Sustainability: heated using heat recovery and uses a green energy supplier!

Safety: CCTV and warden on-site. The property is in a gated complex in a quiet, residential area.

3 bedrooms fully furnished with 4ft double bed, desk, chair, shelves and wardrobe

1 bathroom

1WC

Open plan kitchen/living space with sofas and dining set

Fridge, freezer , microwave , oven, hob and dishwasher

Flatscreen Smart TV

Washing machine , Tumble dryer

Virgin Media Fibre Optic ready

Access to Shared Courtyard Garden

Bike storage

Onsite warden

Bandwidth average of 54mph to 362mphs depending upon package

FAQs for tenants and parents

We’ve collated the questions we are asked the most by tenants, both future and current and of course, their parents.